Рекомендуемые схемы подключения пиролизных котлов ATMOS
Рекомендуемые схемы подключения твердотопливных котлов с использованием «Laddomat 21» представлены в данной статье с использованием терморегулирующих вентилей, трехходовых вентилей, управляемых электронным регулированием до требуемой температуры возвратной воды, электронного регулирования систем отопления и обогрева теплой производственной водой. Данные схемы можно использовать для твердотопливных котлов мощностью до 100 кВт. ![]() | 1. Подключение твердотопливного котла с «Laddomat 21», одним контуром отопления с обогревом TUV в комбинированном бойлере, закрытый расширительный бак - простое регулирование с тремя дополнительными термостатами |
![]() | 2. Подключение котла с «Laddomat 21», одним контуром отопления с обогревом TUV в комбинированном бойлере, закрытый расширительный бак - простое регулирование с двумя дополнительными термостатами |
![]() | 3. Подключение котла с терморегулирующим вентилем, одним контуром отопления с обогревом TUV в комбинированном бойлере, закрытый расширительный бак - простое регулирование с тремя термостатами |
![]() | 4. Подключение котла с терморегулирующим вентилем, одним контуром отопления с обогревом TUV в комбинированном бойлере, закрытый расширительный бак - простое регулирование с двумя термостатами |
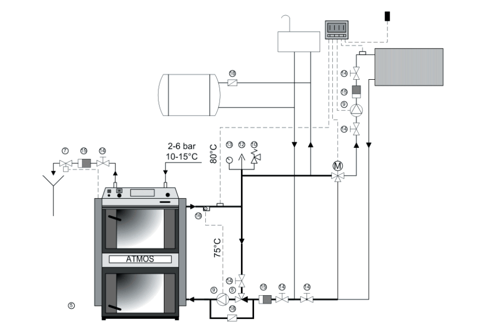
![]() | 5. Подключение котла с терморегулирующим вентилем, одним контуром отопления с обогревом TUV в комбинированном бойлере, открытый расширительный бак - электронное регулирование системы отопления |
![]() | 6. Подключение котла с «Laddomat 21», одним контуром отопления с обогревом TUV в комбинированном бойлере, открытый расширительный бак - электронное регулирование системы отопления |
![]() | 7. Подключение котла с двумя управляемыми трехходовыми клапанами, одним контуром отопления с обогревом TUV в комбинированном бойлере, открытый расширительный бак - электронное регулирование системы отопления и возвратной воды в котле |
![]() | 8. Подключение котла с «Laddomat 21», одним контуром отопления с обогревом TUV в комбинированном бойлере, открытый расширительный бак - простое регулирование с одним дополнительным термостатом |
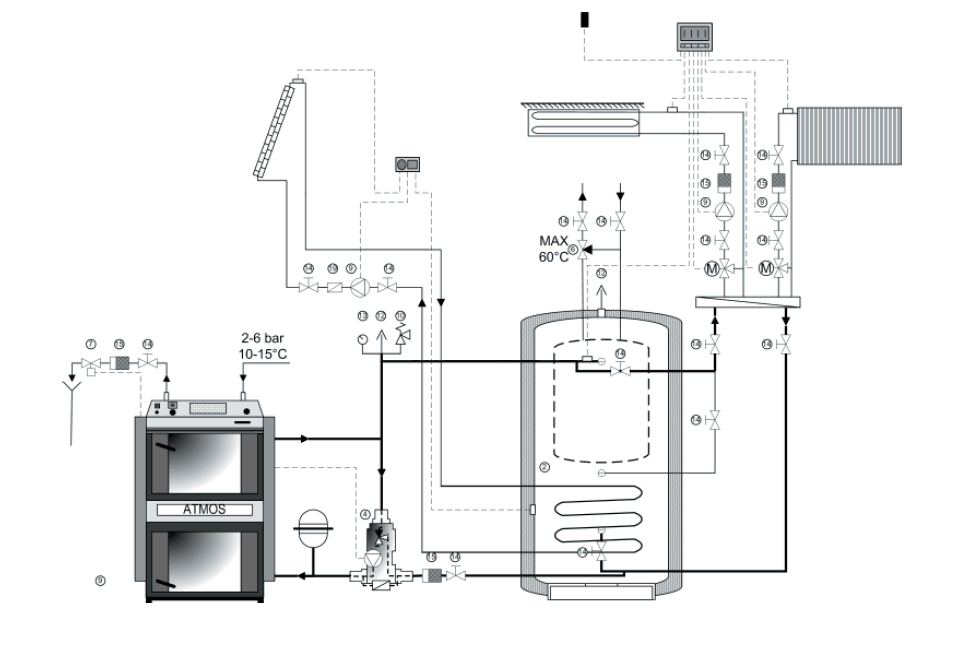
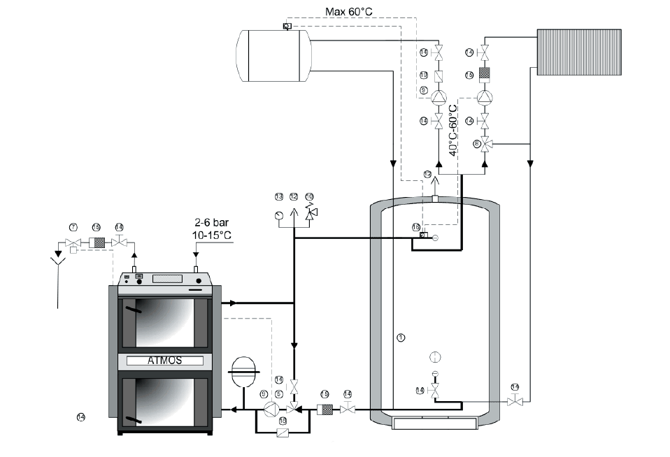
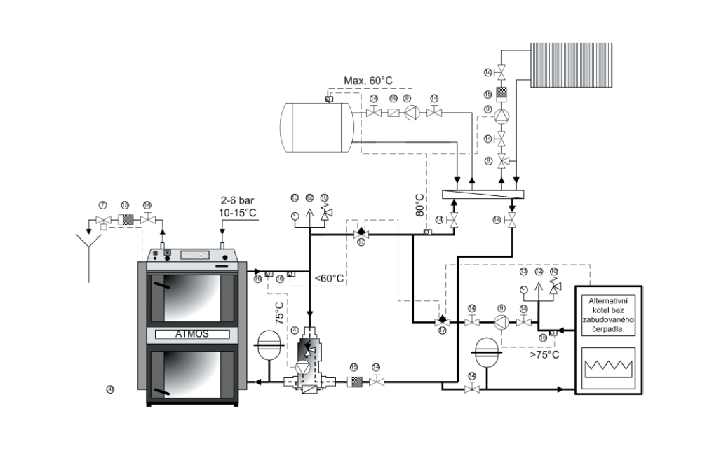
![]() | 9. Подключение котла с «Laddomat 21», двумя контурами отопления, компенсационный бак с обогревом TUV, солярный обогрев, закрытый расширительный бак- электронное регулирование системы отопления |
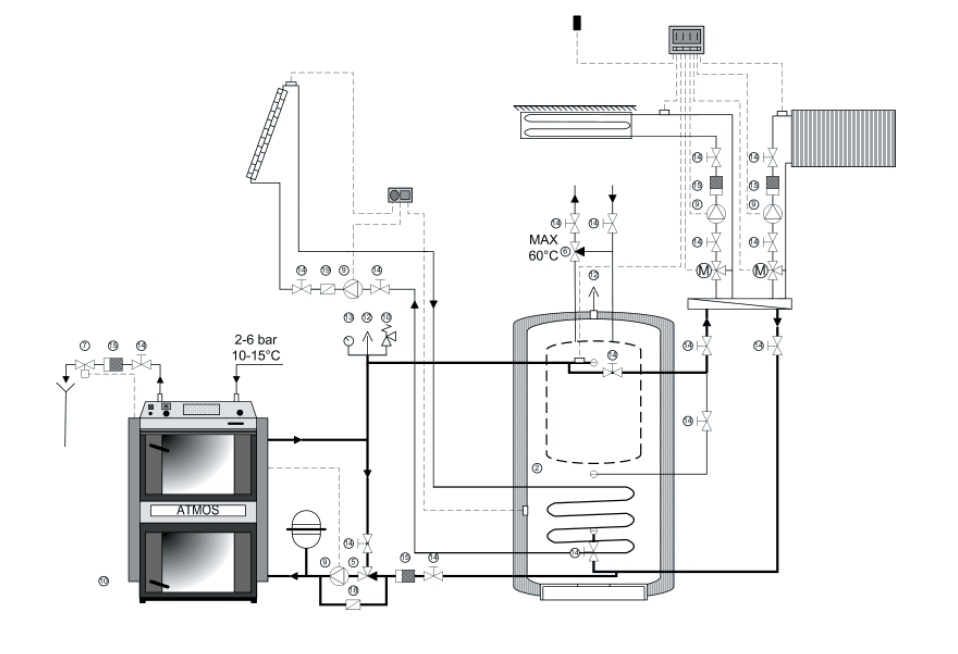
![]() | 10. Подключение котла с терморегулирующим вентилем, двумя контурами отопления, компенсационный бак с обогревом TUV, солярный обогрев, закрытый расширительный бак - электронное регулирование системы отопления |
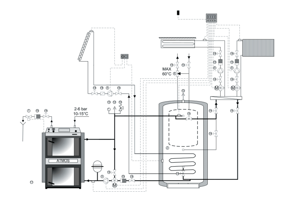
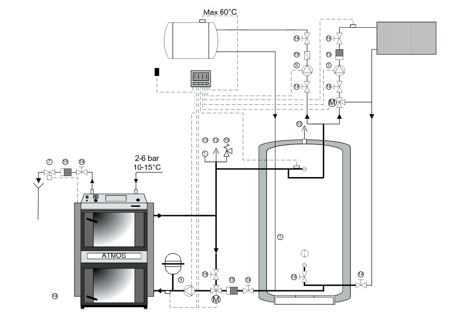
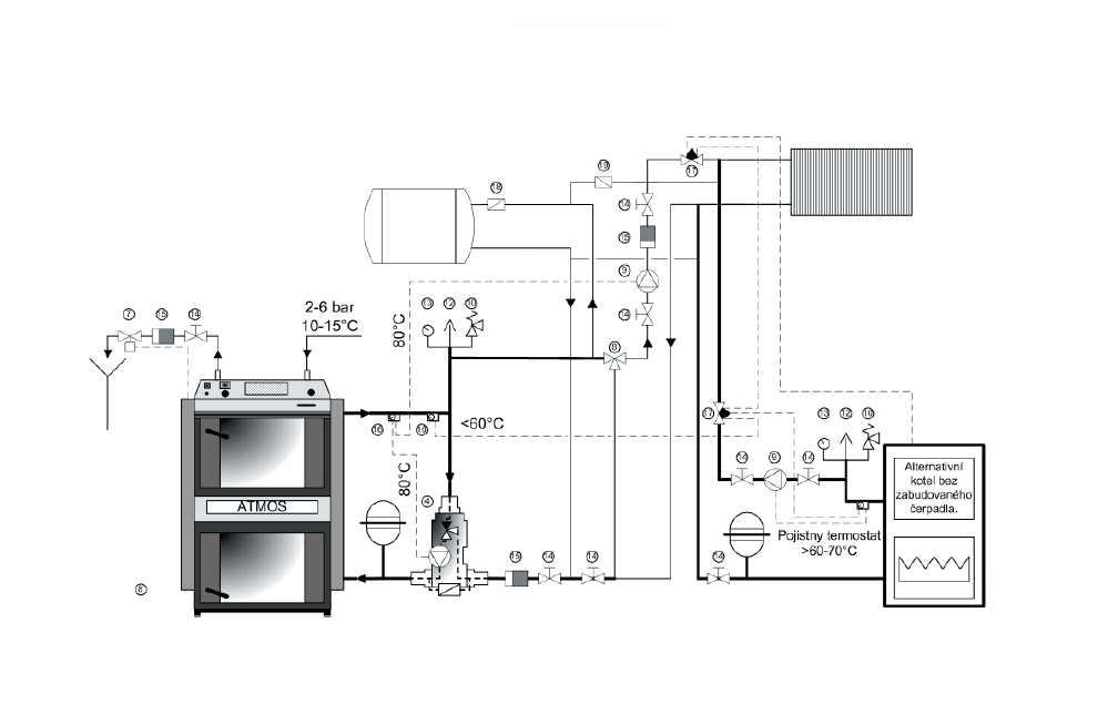
![]() | 11. Подключение котла с управляемым трехходовым вентилем, двумя контурами отопления, компенсационным баком с обогревом TUV, солярный обогрев, закрытый расширительный бак - электронное регулирование системы отопления и возвратной воды в котел |
![]() | 13. Подключение котла с терморегулирующим вентилем, одним контуром отопления, с обогревом TUV в комбинированном бойлере, компенсационным баком, закрытый расширительный бак- простое регулирование двумя термостатами |
![]() | 14. Подключение котла с терморегулирующим вентилем, одним контуром отопления, с обогревом TUV в комбинированном бойлере, компенсационным баком, закрытый расширительный бак - простое регулирование с двумя термостатами |
![]() | 15. Подключение котла с управляемым трехходовым вентилем, одним контуром отопления, с обогревом TUV в комбинированном бойлере, компенсационным баком, закрытый расширительный бак - электронное регулирование системы отопления и возвратной воды в котле |
![]() | 16. Подключение котла с «Laddomat 21» и двумя аккумулирующими баками с обогревом TUV, одним контуром отопления, закрытый расширительный бак- электронное регулирование системы отопления |
![]() | 17. Подключение котла с управляемым трехходовым вентилем и двумя аккумулирующими баками с обогревом TUV, одним контуром отопления, закрытый расширительный бак - электронное регулирование системы отопления и возвратной воды в котле |
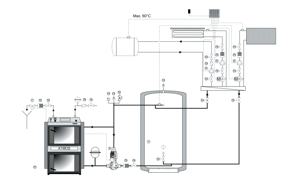
![]() | 18. Подключение котла с «Laddomat 21» и двумя аккумулирующими баками, одним контуром отопления с обогревом TUV в комбинированном бойлере, открытый расширительный бак - электронное регулирование системы отопления |
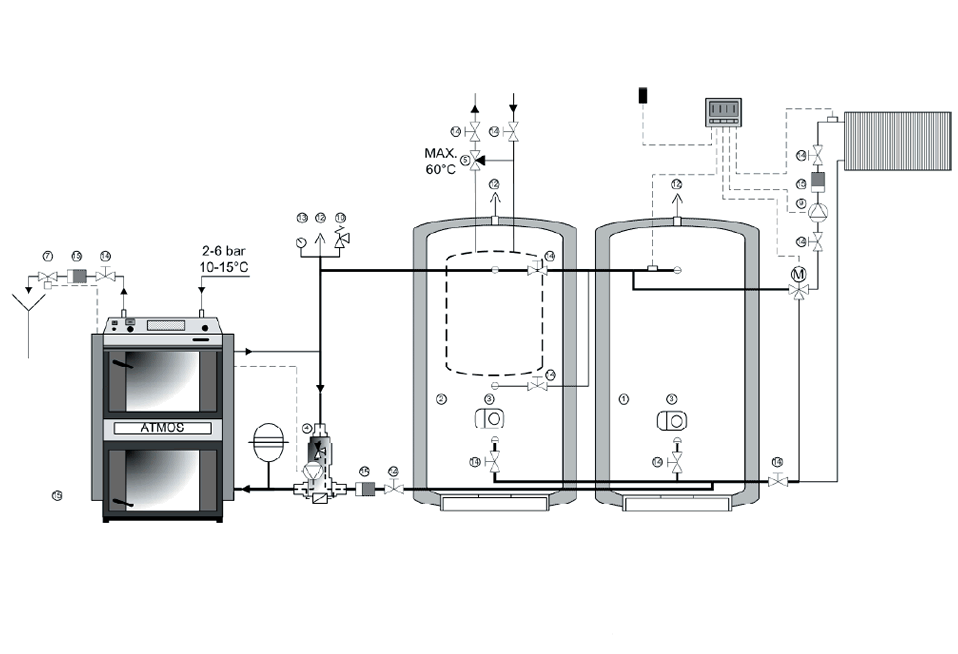
![]() | 19. Подключение котла с «Laddomat 21» и тремя аккумулирующими баками с обогревом TUV, двумя контурами отопления, закрытый расширительный бак - простое регулирование с одним дополнительным термостатом |
![]() | 20. Подключение котла с «Laddomat 21» и тремя аккумулирующими баками с обогревом TUV, двумя контурами отопления, закрытый расширительный бак - электронное регулирование системы отопления |
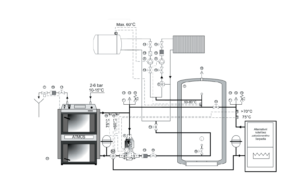
![]() | 21. Подключение котла с «Laddomat 21» и аккумулирующим баком, двумя контурами отопления, с обогревом TUV в комбинированном бойлере, закрытый расширительный бак - электронное регулирование системы отопления |
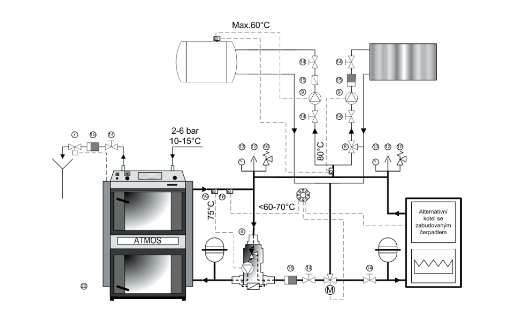
![]() | 22. Подключение двух котлов, «Laddomat 21», с одним контуром отопления, с обогревом TUV в комбинированном бойлере, закрытый расширительный бак - электронное регулирование системы отопления и автоматическое переключение работы котлов с помощью трехходового вентиля |
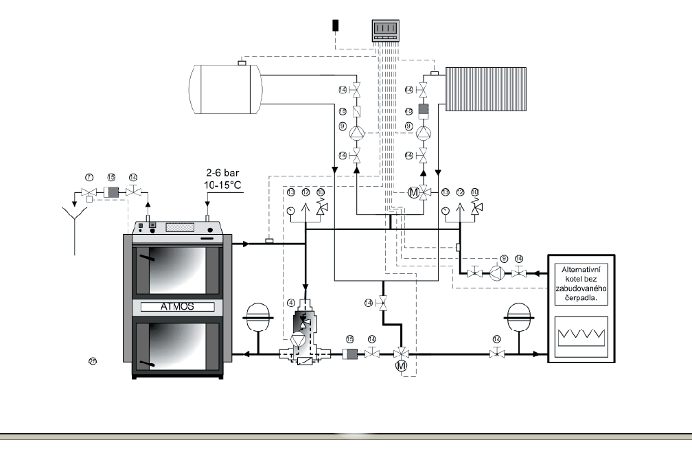
![]() | 23. Подключение двух котлов, «Laddomat 21», с одним контуром отопления, с обогревом TUV в комбинированном бойлере, закрытый расширительный бак - простое регулирование системы отопления и переключение работы котлов с помощью трехходового вентиля |
![]() | 24. Подключение двух котлов с «Laddomat 21» для защиты обратного хода у обоих котлов, с одним контуром отопления, с обогревом TUV в комбинированном бойлере, закрытый расширительный бак - электронное регулирование системы отопления и автоматическое переключение работы котлов с помощью трехходового вентиля |
![]() | 25. Подключение двух котлов с «Laddomat 21» для защиты обратного хода у обоих котлов, с одним контуром отопления, с обогревом TUV в комбинированном бойлере, закрытый расширительный бак - простое регулирование системы отопления и автоматическое переключение работы котлов с помощью трехходового вентиля |
![]() | 26. Подключение двух котлов, «Laddomat 21», с одним контуром отопления, с обогревом TUV в комбинированном бойлере, закрытый расширительный бак - электронное регулирование системы отопления и автоматическое переключение работы котлов с помощью трехходового вентиля |
![]() | 27. Подключение двух котлов с «Laddomat 21» для защиты обратного хода у обоих котлов, с одним контуром отопления, обогревом TUV в комбинированном бойлере, закрытый расширительный бак - электронное регулирование системы отопления и автоматическое переключение работы котлов с помощью трехходового вентиля |
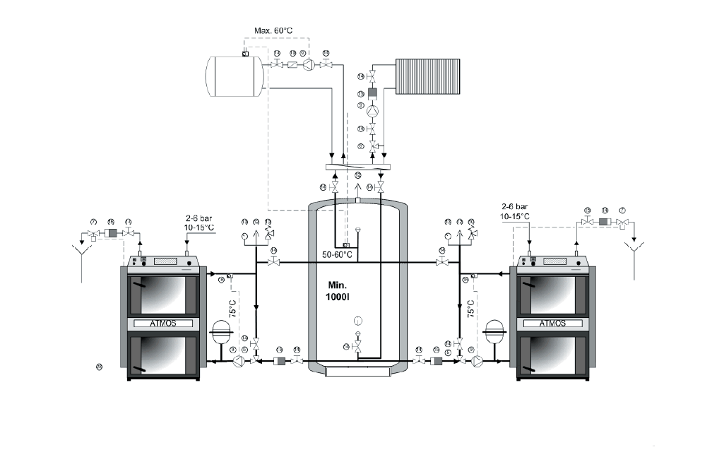
![]() | 28. Подключение двух котлов для твердого топлива с терморегулирующим вентилем для защиты обратного хода, с одним контуром отопления, обогревом TUV в комбинированном бойлере, закрытый расширительный бак, компенсационный бак - простое регулирование системы отопления и ручное переключение работы котлов |
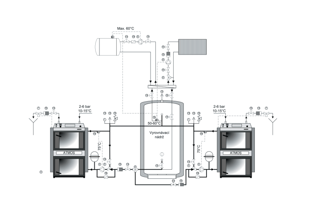
![]() | 29. Подключение двух котлов с терморегулирующим вентилем для защиты обратного хода, с одним контуром отопления, обогревом TUV в комбинированном бойлере, закрытый расширительный бак, компенсационный бак 1000l - простое регулирование системы отопления, возможна работа обеих котлов одновременно |
![]() | 30. Подключение двух котлов с «Laddomat 21» для защиты обратного хода, с одним контуром отопления, обогревом TUV в комбинированном бойлере, закрытый расширительный бак - простое регулирование системы отопления |
![]() | 31. Подключение двух котлов, «Laddomat 21» для защиты обратного хода, с одним контуром отопления, обогревом TUV в комбинированном бойлере, закрытый расширительный бак - электронное регулирование системы отопления, автоматическое переключение работы котлов с помощью зональных вентилей |
![]() | 32. Подключение двух котлов, «Laddomat 21» для защиты обратного хода, с одним контуром отопления, обогревом TUV в комбинированном бойлере, закрытый расширительный бак - простое регулирование системы отопления, автоматическое переключение работы котлов с помощью зональных вентилей и термостатов |
![]() | 33. Подключение двух котлов, «Laddomat 21» для защиты обратного хода, одним контуром отопления, обогревом TUV в комбинированном бойлере, закрытый расширительный бак - простое регулирование системы отопления, автоматическое переключение работы котлов с помощью зональных вентилей и термостатов |
![]() | 34. Подключение двух котлов с «Laddomat 21» для защиты обратного хода у обоих котлов, с компенсационным баком, одним контуром отопления, обогревом TUV в комбинированном бойлере, закрытый расширительный бак - простое регулирование системы отопления, автоматическое переключение работы котлов с помощью трехходового смесительного клапана |
![]() | 35. Подключение двух котлов, «Laddomat 21» для защиты обратного хода, с одним контуром отопления, с обогревом TUV в комбинированном бойлере, закрытый расширительный бак - простое регулирование системы отопления и автоматическое переключение работы котлов с помощью двух зональных вентилей |
![]() | 36. Подключение трех котлов с «Laddomat 21» для защиты обратного хода, с двумя контурами отопления, с обогревом TUV в комбинированном бойлере, закрытый расширительный бак, компенсационный бак - простое регулирование системы отопления, закрытие отдельных контуров котлов с помощью зональных вентилей |
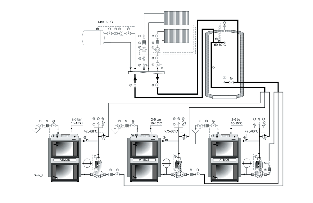
![]() | 37. Подключение трех котлов с «Laddomat 21» для защиты обратного хода, с двумя контурами отопления, с обогревом TUV в комбинированном бойлере, закрытый расширительный бак - простое регулирование системы отопления, закрытие отдельных контуров котлов с помощью зональных вентилей |
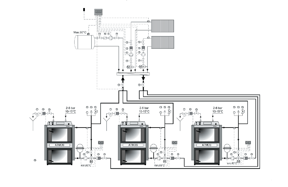
![]() | 38. Подключение трех котлов с управляемым трехходовым вентилем для каждого котла с защитой обратного хода, с двумя контурами отопления, с обогревом TUV в комбинированном бойлере, закрытый расширительный бак - простое регулирование системы отопления |
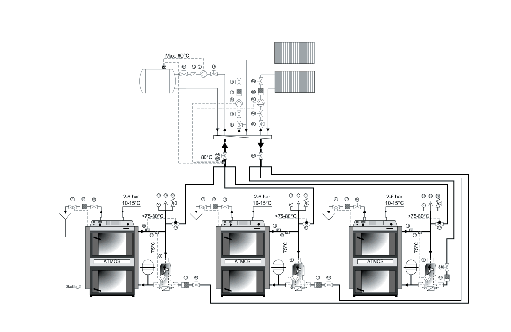
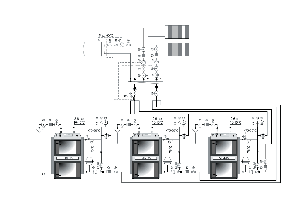
![]() | 39. Подключение трех котлов с терморегулирующим вентилем для защиты обратного хода, с двумя контурами отопления, с обогревом TUV в комбинированном бойлере, закрытый расширительный бак - электронное регулирование системы отопления, закрытие отдельных контуров котлов с помощью зональных вентилей |
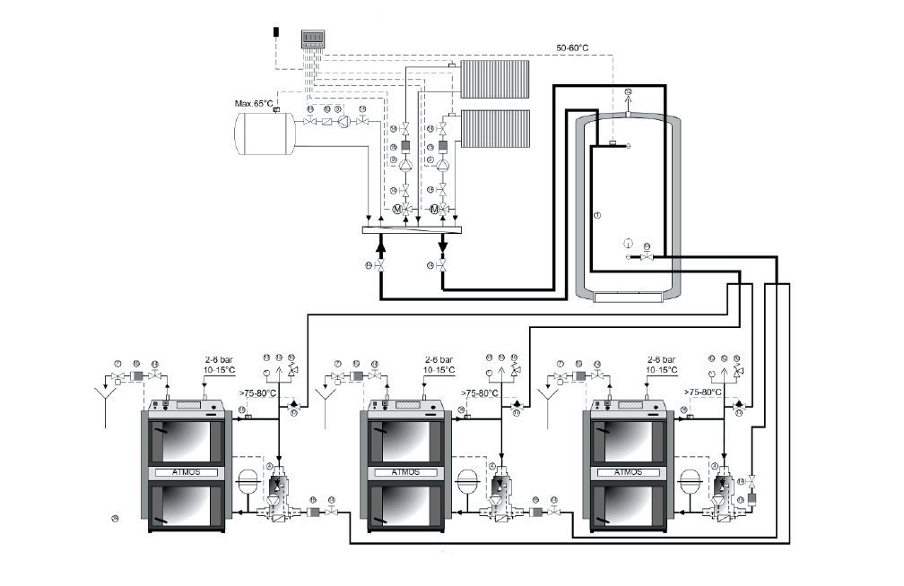
![]() | 40. Подключение трех котлов с «Laddomat 21» для защиты обратного хода, с двумя контурами отопления, с обогревом TUV в комбинированном бойлере, закрытый расширительный бак, компенсационный бак - электронное регулирование системы отопления, закрытие отдельных контуров котлов с помощью зональных вентилей |
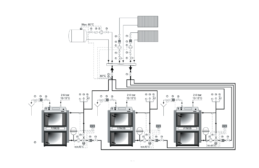
![]() | 41. Подключение трех котлов с управляемым трехходовым вентилем для каждого котла с защитой обратного хода, двумя контурами отопления, с обогревом TUV в комбинированном бойлере, закрытый расширительный бак - электронное регулирование системы отопления |
![]() | 42. Подключение трех котлов с терморегулирующим вентилем для защиты обратного хода, двумя контурами отопления, с обогревом TUV в комбинированном бойлере, закрытый расширительный бак - простое регулирование системы отопления, закрытие отдельных контуров котлов с помощью зональных вентилей |
производитель
ATMOS
Если вы хотите купить рекомендуемые схемы подключения пиролизных котлов ATMOS , вы можете:











































