Монтаж промышленных котельных и тепловых пунктов для предприятий
Компания «Торговый дом Атмос» с 2007 года профессионально производит монтаж промышленных котельных и тепловых пунктов, систем отопления промышленных зданий, производств, спортивных объектов и водоснабжения различного уровня сложности, устанавливает котлы на различных видах топлива, солнечные коллекторы и бойлеры для ГВС.
Мы предлагаем консультацию квалифицированных инженеров в подборе отопительного оборудования, выгодные условия покупки и рассрочки товара, полную техническую поддержку и сервисное обслуживание структурным подразделением организации. Сотрудники компании ежегодно проходят обучение на заводах-производителях и повышают квалификацию и профессиональную компетентность на практических семинарах и в специализированных учебных центрах.
Все наши сотрудники - профессиональные специалисты, достигшие высоких результатов в своей деятельности. Мы не довольствуемся результатами и продолжаем обогащать запас знаний в области энергоэффективного отопления, применяя бесценный опыт в каждом доме, на каждом объекте!
Мы предоставляем 5-летнюю гарантию на монтажные работы, в течение этого срока мы устраняем неисправности или сбои в системе.

![]() | |
Установка и монтаж теплового пункта - центральный, индивидуальный, блочный теплоузел: этапы работы и преимущества сотрудничества с Торговым Домом Атмос.
Установка теплового узла — важнейший этап в создании качественной системы отопления и горячего водоснабжения в зданиях. Теплоузел отвечает за распределение тепловой энергии, регулировку температурных параметров и учет потребления тепла. Правильный монтаж теплового пункта особенно важен для обеспечения надежной и экономичной работы системы, особенно в условиях современных требований к энергоэффективности зданий.
Торговый дом «Атмос» предлагает комплексные услуги по монтажу тепловых узлов и центральных тепловых пунктов (ЦТП) на объектах любой сложности. Наша компания имеет многолетний опыт в реализации инженерных решений для систем отопления и горячего водоснабжения.
![]() | ![]() | ![]() | |
Этапы монтажа теплового узла и ЦТП:
1. Проектирование теплового узла
Первый этап — это детализированный анализ тепловых потребностей здания и существующей отопительной системы. Специалисты "Торгового дома Атмос" оказывают помощь проектным организациям при разработке проектной документации, учитывая все пожелания клиента и соблюдая нормативные требования.
2. Выбор оборудования
После утверждения проекта производится подбор необходимого оборудования. "Торговый дом Атмос" предлагает разнообразные тепловые узлы и комплектующие от проверенных производителей, что позволяет подобрать наиболее подходящие решения для любого объекта.
3. Подготовительные работы
На этом этапе осуществляется подготовка площадки для монтажа: разметка территории, установка опорных конструкций и проверка состояния коммуникаций. Все работы выполняются в соответствии с проектной документацией и строительными стандартами.
4. Монтаж и установка теплового узла или ЦТП
На данном этапе специалисты выполняют установку и подключение всех компонентов теплового узла или центрального теплового пункта. Это включает монтаж теплообменников, насосов, трубопроводов, арматуры и оборудования для автоматизации и контроля. Все работы проводятся в строгом соответствии с проектными и нормативными требованиями.
5. Пуско-наладочные работы
После завершения монтажных работ выполняется пусконаладка системы. Специалисты проверяют работоспособность всех узлов, настраивают оборудование и проводят тестирование на соответствие проектным характеристикам, что гарантирует стабильную и эффективную работу системы в будущем.
6. Сдача объекта и обучение персонала
Завершающий этап включает передачу объекта заказчику и обучение обслуживающего персонала правилам эксплуатации установленного оборудования.
Преимущества работы с компанией "Торговый дом Атмос" для монтажа теплового пункта:
Монтаж теплового узла — это сложная и ответственная задача, от правильного выполнения которой зависит функционирование всей системы отопления и горячего водоснабжения. Компания "Торговый дом Атмос" предлагает своим клиентам полный спектр услуг по монтажу тепловых узлов, гарантируя высокое качество, энергоэффективность и комфорт при эксплуатации. Доверьте эту задачу профессионалам компании Торговый Дом Атмос и получите качественное и долговечное решение, соответствующее всем вашим требованиям и ожиданиям.
Звоните и заказывайте монтаж теплового пункта в компании "Торговый Дом Атмос": +375293741345 !
Почему нам доверяют?
- С 2007 года наша компания "Торговый Дом Атмос" сотрудничает с чешским заводом ATMOS. За 18 лет продано более 3000 пиролизных котлов ATMOS, смонтировано и запущено более 2000 котлов.
2. Ежегодно сотрудники компании проходят обучение на заводах-производителях, повышают квалификацию и профессиональную компетентность на практических семинарах и в специализированных учебных центрах.
3. Мы являемся авторизованным сервисным центром, поэтому предоставляем 5-летнюю гарантию на монтажные работы.
4. Многолетний опыт работы в сфере энергоэффективного отопления дает высокие результаты, благодаря внедрению инновационных продуктов, использованию качественных материалов, профессиональному уровню и мастерству.
5. Наша компания осуществляет прямые поставки отопительного оборудования, производит проектирование и монтаж систем отопления, осуществляет гарантийное и сервисное обслуживание.
Наши работы - монтаж котлов большой мощности на промышленных объектах:
Каскад пеллетных котлов ZOTA суммарной мощностью 300 кВт в Витебской области - автоматизированная котельная на базе пеллетных котлов ZOTA.
На промышленном объекте в Витебской области выполнен монтаж и пусконаладка каскадной пеллетной котельной ZOTA общей мощностью 300 кВт.
Система отопления построена по каскадной схеме с автоматическим распределением нагрузки и резервированием теплогенераторов. Такое решение обеспечивает стабильную работу оборудования, высокий КПД и экономичный расход пеллет.
![]() | ![]() | ![]() | ![]() | ![]() | ![]() | |
Технические особенности проекта
В составе котельной установлены пеллетные котлы ZOTA, объединённые в единую каскадную систему. Управление и защита реализованы с использованием современной автоматики.
В проекте предусмотрено:
- Погодозависимое управление для поддержания комфортной температуры и экономии пеллет;
- Система автоматики контроля давления, температуры и уровня топлива;
- Защитные сценарии и автоматический ввод резервного котла при перегрузке или остановке одного из агрегатов;
- Дистанционный мониторинг и диспетчеризация параметров работы котельной;
- Модульная структура, обеспечивающая простоту обслуживания и гибкость при масштабировании.
Реализовано автономное, энергоэффективное и сервис-ориентированное решение для систем отопления на пеллетном топливе.
Котельная ZOTA в Витебской области работает в полностью автоматическом режиме, адаптируя мощность к текущим тепловым нагрузкам и поддерживая оптимальный режим с минимальными затратами.
Наша компания ООО "Торговый Дом Атмос" выполняет проектирование, монтаж и запуск пеллетных котельных ZOTA любой мощности - от частных домов до промышленных предприятий, складов, СТО.
Мы разрабатываем решения, ориентированные на энергоэффективность, автоматизацию и надёжность работы в климатических условиях Беларуси.
Монтаж в каскаде пиролизных котлов ATMOS DC 105 суммарной мощностью 210 кВт.
На данном производственном объекте проектно-сметной документацией предусмотрена каскадная установка пиролизных котлов ATMOS DC 105 S. Особенностью данной модели являются вытяжные вентиляторы, управляемые клапанами BELIMO. Толщина котловой стали 8 мм. КПД 90%.
Котловой контур состоит из трехходового смесительного вентиля REGULUS TSV 8 65 °C, обратного лепесткового клапана без пружины DN50 и циркуляционного насоса Grundfos.
Проектом предусмотрена установка аккумулирующих емкостей общим объемом 6000 литров и расширительных баков Reflex N1000.
Установлены дымоходы из нержавеющей стали высотой 20 метров. Монтажные работы пиролизных котлов ATMOS выполнены аргонно-дуговой сваркой стальных труб.
Проектно-сметная документация подготовлена заказчиком. |
Монтаж, установка и пуско-налодочные работы системы отопления с пеллетным котлом ZOTA Pellet Black 99 кВт.
Представленные фотографии демонстрируют полный цикл работ по монтажу, установке и запуску системы отопления на базе пеллетного котла ZOTA Pellet Black мощностью 99 кВт. Этот проект был реализован для обогрева производственного помещения площадью 800 м², включающего производственные цеха и офисные помещения.
![]() | ![]() | ![]() | |
Основные элементы системы отопления:
-
Пеллетный котел ZOTA Pellet Black 99 кВт:
- КПД котла достигает 92%, что обеспечивает экономичное потребление топлива.
- Полностью автоматизированный процесс работы, включая подачу пеллет и управление горением, сводит к минимуму участие пользователя.
- Конструкция котла обеспечивает надежную и стабильную работу при интенсивных нагрузках.
-
Малый контур котла с термосмесительным клапаном Regulus DN 50:
- Для поддержания оптимального температурного режима и защиты теплообменника от низкотемпературной коррозии установлен термосмесительный клапан Regulus DN 50 с температурой смешивания 55 °C.
- Такое решение продлевает срок службы котла и повышает эффективность системы.
-
Котловой энергоэффективный насос ZOTA EcoRing 40-120:
- Высокопроизводительный насос ZOTA EcoRing 40-120 обеспечивает необходимый расход теплоносителя через котел, предотвращая его перегрев и обеспечивая стабильную работу всей системы.
- Энергоэффективная конструкция насоса снижает энергопотребление, что особенно важно для объектов с круглосуточной работой системы отопления.
-
Система распределения тепла производственного объекта:
- В цехах установлены тепловентиляторы, которые обеспечивают равномерное и быстрое распределение тепла по помещению.
- В офисных зонах предусмотрены радиаторы, создающие комфортные условия для работы сотрудников.
Этот проект является примером внедрения современных и энергоэффективных технологий для отопления крупных производственных объектов. Результат установки и монтажа котельной с промышленным пеллетным котлом ZOTA Pellet Black 99 кВт демонстрирует профессионализм и внимание к деталям специалистов нашей компании - Торговый Дом Атмос.
Обращайтесь к специалистам Торгового Дома Атмос! Мы предлагаем индивидуальные проекты отопления под ключ для производственных и жилых объектов, которые соответствует современным стандартам энергоэффективности.
Звоните: +375 29 374 13 45 , +375 17 323 69 47 .
Запуск котельной с пеллетным котлом Zota Pellet Black 90 кВт в обвязке с буферной емкостью объемом 1000 литров в г. Шклов.
Запуск котельной с пеллетным котлом — это важный этап, определяющий эффективность и надежность системы отопления. Делимся опытом установки и настройки пеллетного котла Zota Pellet Black мощностью 90 кВт.
![]() | ![]() | ![]() | |
Пеллетный котел Zota Pellet Black 90 кВт не только обеспечивает стабильное отопление в коммерческих и производственных помещениях, но и минимизирует эксплуатационные расходы благодаря использованию возобновляемого топлива - древесных пеллет и интеллектуальным контроллером. Котел оснащен автоматической системой подачи топлива, обеспечивая автономную работу котла до 8 суток с минимальным участием оператора.
Установка пеллетного котла Zota Pellet Black 90 кВт в котельной демонстрирует современные стандарты эффективности и экологичности. Благодаря автоматизированной системе управления и высокому КПД - 90%, котел обеспечивает стабильное и экономичное отопление больших объектов. Простой в эксплуатации, высокий уровень сервисного обслуживания обслуживания и возможность интеграции с интеллектуальными системами делают Zota Pellet Black отличным выбором для отопления промышленных помещений и коммерческих зданий.
Почему выбирают пиролизные котлы ATMOS для отопления административных, производственных и жилых помещений?
Заказчики руководствуются следующими критериями:
1. Долговечность. В нашей практике все чаще встречаются твердотопливные пиролизные котлы Атмос, срок эксплуатации которых более 20 лет. Пользователи отмечают технологичность и надежность конструктивных решений, а также удобство обслуживания пиролизных котлов ATMOS.
2. Экологичность. Все пирозные котлы Атмос относятся к 5-му классу энергоэффективности, согласно европейским нормам выбросов CSN EN 303-5, и соответствуют белорусским экологическим требованиям ЭКОНИП.
3. Эффективность. Благодаря процессу пиролиза КПД котлов ATMOS достигает максимального значения среди твердотопливных котлов - 92,6%. Поэтому газогенераторные твердотопливные котлы ATMOS называются энергоэффективными котлами длительного горения.
4. Экономичность. Энергоемкость процесса пиролиза позволяет сэкономить до 45% топлива за отопительный сезон. В связи с этим пиролизные котлы ATMOS пользуются популярностью среди собственников частных домов, но и среди владельцев крупномасштабных производств.
5. Новые технологии. При разработке и производстве твердотопливных пиролизных котлов ATMOS применяется современное и технологичное оборудование, которое позволяет создавать качественные и надежные котлы длительного горения ATMOS.
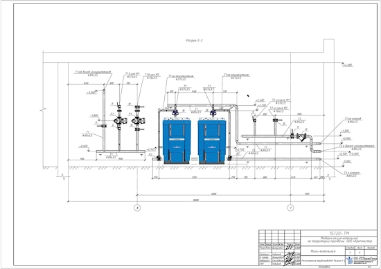
Монтаж и установка пеллетных котлов ATMOS в каскаде суммарной мощностью 160 кВт.
В административном здании установлены два пеллетных котла ATMOS D80P суммарной мощностью 160кВт. Пеллетные котлы ATMOS D80P смонтированы в каскаде. В комплект с котлами входит компрессорная очистка пеллетной горелки.
- Водонагреватель DRAZICE OKC 1000 NTR/BP.
- Обвязаны две аккумулирующие емкости DRAZICE NAD 1000 v2.
- Установлено два дымохода.
- Установлены энергосберегающие насосы.
- Работы произведены при помощи сварки — надежно и качественно.
- Пусконаладочные работы произведены с использование газоанализатора.
![]() | ![]() | ![]() | ![]() | ![]() | ![]() | ![]() | ![]() | |
Монтаж твердотопливного пиролизного котла ATMOS DC150 мощностью 150 кВт.
Монтаж твердотопливного котла ATMOS DC150 мощностью 150 кВт в административно-производственном комплексе в Минской области. Для отопления предусмотрен чешский твердотопливный котел ATMOS DC150 мощностью 150 кВт. Для энергоэффективной работы котла и системы отопления установлены аккумулирующие баки DRAZICE NAD 1000 v2 общим объемом 4000 литров. Как всегда на промышленных объектах применяем сварочные работы. Надежно и долговечно.
![]() | ![]() | |
![]() | ![]() | ![]() | ![]() | ![]() | |
Пиролизные котлы ATMOS DC 150 оборудованы двумя вытяжными вентиляторами, управляемые клапанами BELIMO. Данные котлы соответствуют белорусским требованиям и нормам ЭКОНИП. Класс эмиссий 5. КПД 90%. Толщина металла 8 мм.
Монтаж, установка, запуск твердотопливного пиролизного котла ATMOS DC100 мощностью 99 кВт.
Пиролизный котел ATMOS DC100 установлен в производственном здании в г.Борисов. В топочной демонтированы старые чугунные котлы. Установлен пиролизный котел ATMOS DC100 мощностью 99кВт, произведена врезка в действующую систему отопления, смонтирован новый дымоход. Сварочные работы выполнены аргонной сваркой.
![]() | ![]() | ![]() | ![]() | ![]() | ![]() | ![]() | ![]() | |
Монтаж твердотопливного котла ATMOS DC 75 SE мощностью 75 кВт.
Монтаж твердотопливного котла ATMOS DC 75 SE в производственном комплексе г. Сморгонь. В системе отопления предусмотрена установка радиаторов в административном блоке и тепловентиляторов в производственном. В топочной установлена автоматика установления температурой в отопительных контурах. Для эффективного аккумулирования тепла выбраны аккумулирующие емкости DRAZICE NAD 1000 v2 в количестве 3 шт. Обвязка котла произведена аргонно-дуговой сваркой.
Наша компания осуществляет прямые поставки отопительного оборудования, производит проектирование и монтаж систем отопления (лицензия №), осуществляем гарантийное и сервисное обслуживание.
Мы предлагаем оптимальное комплексное решение для любой системы отопления по лучшим ценам.
![]() | ![]() | ![]() |
![]() | ![]() | |
Пуско-наладочные работы и запуск пиролизных котлов ATMOS DC 150 S мощностью 150 кВт.
Произвели запуск котлов на объекте, где система отопления спроектирована с насосами и открытыми расширительными баками.
Два пиролизных котла ATMOS серии DC 150 S смонтированы в каскаде.
Проектное решение — теплообменник вместо аккумулирующей емкости.
Для приготовления горячей воды установлен бойлер комбинированного нагрева DRAZICE OKC 300 NTR/BP.
![]() | ![]() | ![]() | ![]() | ![]() | ![]() | ![]() | |

Монтаж, установка, ПНР пеллетного котла ATMOS D80P мощностью 80 кВт.
Монтажные работы по установке пеллетного котла ATMOS D80P мощностью 80 кВт с двумя теплобаками (аккумулирующими емкостями) DRAZICE в производственно-складском здании в Минском районе. Отапливаемая площадь 510м2, из которых 480м2 составляют производственные площади, 30м2 - офисные. Для обогрева производства установлены тепловентиляторы, в офисном - радиаторы. Наша задача - монтаж и обвязка пеллетного котла и дымохода.
Для обвязки котла мы использовали стальную трубу, применяя аргонно-дуговую сварку. ПНР были произведены 07.01.2019г.
![]() | ![]() | |
Пеллетный котел ATMOS D80P мощностью 80кВт с вытяжным вентилятором и компрессорной очисткой пеллетной горелки. Топливный бункер для пеллет, изготовленный заказчиком необходимого объема и размера, установлен в соседнем помещении.
![]() | ![]() | |
Отличительная особенность пеллетных котлов ATMOS - керамическая футеровка в камере сгорания. Армированная керамика в котлах ATMOS является катализатором и защищает теплообменник.
![]() | ![]() | |
Пеллетный котел D80P имеет трубчатый теплообменник с турбулизаторами. Зольный ящик имеет достаточно большие размеры, который необходимо очищать 1-2 раза в месяц в зависимости от качества пеллет.
![]() | ![]() | |
Малый контур котла обвязан трехходовым термастатическим клапаном REGULUS TSV6. Насосы для котлового контура и системы отопления - GRUNDFOS.
![]() | ![]() | |
Монтаж пеллетных котлов ATMOS 80 кВт в г. Минске.
Монтажные работы двух пеллетных котлов ATMOS D80P в каскаде по 80 кВт, суммарная мощность пеллетных котлов 160 кВт. Пеллетные котлы ATMOS D80P с компрессорной очисткой - стандартная заводская комплектация.
![]() | ![]() | ![]() | |

Монтаж газогенераторного котла ATMOS DC100 мощностью 99 кВт.
Монтажные работы газогенераторного твердотопливного котла ATMOS DC100 с аккумулирующей емкостью на 2000 литров и установка дымохода в производственном здании в г. Вилейка. Общая высота дымохода 35 метров.

Монтаж, установка, запуск пеллетного котла ATMOS D80P на СТО.
Объект не из легких на одном из СТО г.Минска. Работали в очень стесненных условиях. Помещение под топочную для пеллетного котла очень маленькое - 1,5х3,0 м. При этом необходимо установить баки-аккумуляторы, пеллетный котел с бункером на 500л и разместить другое оборудование таким образом, чтобы удобно было обслужить и пеллетный котел, и насосы, и др. Существующая система отопления с двумя контурами - радиаторы и тепловентиляторы. Наша задача - обвязать котел и подключиться к системе отопления.
В данной котельной установлен пеллетный котел ATMOS D80P чешского производителя ATMOS. Комплект поставки - котел, пеллетная горелка с компрессорной очисткой, шнековый транспортер, бункер для пеллет 500л. В данных условиях конструктивное решение производителя - возможность подключения пеллетной горелки слева или справа от котла - позволило компактно разместить оборудование в котельной. Конструкция котла также уникальна - помимо вертикального теплообменника с большой площадью нагревательной поверхности продуманы турбулизаторы для замедления отходящих газов и удобной очистки котла. Компрессор производит очистку пеллетной горелки в автоматическом режиме сжатым воздухом давлением до 10 бар. Теплоаккумуляторы также чешского производителя DRAZICE. Группа безопасности, смесительные вентили LK 840 для регулировки температуры в контурах отопления, термостатический вентиль TSV6, обратный клапан без пружины, расширительный бак - также чешского производства фирмы REGULUS. Для автономного управления предусматривается установка сервоприводов на смесительные вентили LK840. В данной котельной можно было бы использовать компактные насосные группы, но по решению заказчика все узлы собирались отдельно. Как всегда применяем аргонную сварку - надежно, безопасно, долговечно.
Результат нашей работы.
![]() | ![]() | ![]() | ![]() |
![]() | ![]() | ![]() | |
Установка дымохода на новом объекте в г. Минске.
Монтаж твердотопливного котла начинается с установки дымохода. Правильно рассчитанный и установленный дымоход гарантированно обеспечивает надежную работу котла.
Наша организация выполняет монтаж дымохода любой сложности на различных объектах - от частного домостроения до зданий промышленного назначения.
![]() | ![]() | |
Монтаж пиролизного котла ATMOS DC 150S мощностью 150 кВт.
Осуществили врезку пиролизного дровяного котла ATMOS DC 150S в существующую систему отопления с газовым котлом. Для правильной работы твердотопливного котла установили и обвязали две аккумулирующие емкости DRAZICE NAD V2 1000 литров.
![]() | ![]() | ![]() | ![]() |
![]() | ![]() | ![]() | |
Для надежной работы всей системы отопления обвязываем твердотопливные котлы при помощи сварки стальных труб.
Установлен дымоход из нержавеющей стали.
Объект с твердотопливным котлом мощностью 99 кВт в Минске.
Действующая котельная. Установлен газогенераторный котел Atmos DC100 с аккумулирующими емкостями и водонагревателем Drazice.
![]() | ![]() | |
Доверьте нам монтаж котлов большой мощности и отопление промышленных зданий под ключ.
Сертифицированные специалисты ООО "Торговый дом Атмос" профессионально выполняют проектирование систем отопления для частных домов и административных объектов.
Заказать комплексное проектирование системы отопления, расчет тепловых потерь, подбор отопительного оборудования: твердотопливного, электрического или газового котла отопления, радиаторов, водонагревателя и бойлера, запорной арматуры и теплого пола.
Выбирайте качественное и надежное оборудования для системы отопления!
Заказать проект отопления в Минске по адресу: город Минск, ул. Каменногорская, 47, офис 4.








































































































