Одноконтурный газовый котел MORA-TOP Helios 24 ST В комплекте с дымоходом.
Быстрый переход:
- Описание настенного газового котла MORA-TOP Helios 24 ST
- Технические характеристики одноконтурного газового котла Гелиос 24 ST
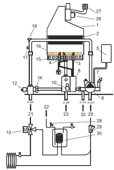
- Функциональная схема турбированного настенного газового котла MORA-TOP Helios 24 ST
- Блок управления газового котла MORA-TOP
- Защитные функции газового котла Helios 24 ST
- Оплата и доставка газового котла MORA-TOP Helios 24 ST
- Инструкция по монтажу и обслуживанию настенного одноконтурного котла MORA-TOP Helios 24 ST
Одноконтурный турбированный газовый котел чешского производителя MORA-TOP мощностью 24 кВт предназначен только для нагрева отопительной воды, а приготовление ГВС может быть обеспечена в водонагревателях косвенного нагрева
типа NTR и NTRR при их подключении к котлу.
Продукты сгорания собираются коллектором продуктов сгорания и при помощи вентилятора отводятся в коаксиальную или двухтрубную систему отвода продуктов сгорания. Для обеспечения безопасной эксплуатации котла, выброс или забор воздуха из/в котёл контролируется маностатом.
Гарантия на турбированный одноконтурный газовый котел MORA-TOP Helios 24 ST: 2 + 1 года!
Эксплуатируемый газовый котел MORA-TOP 2003 года выпуска.

Преимущества газового котла МОРА-ТОП Гелиос 24 кВт
- Высокий КПД - 93% обеспечивает эффективную работу котла
- Высокая надежность регулировочных элементов и автоматики безопасности
- Энергоэффективный насос с частотным регулированием WILO
- Низкое содержание вредных выбросов
- Широкая диапазон регулировки мощности: от 40 до 100 %
- Возможность подключения наружного датчика для эквитермического регулирования
- Возможность подключения комнатного термостата для регулировки температуры в помещении с высокой точностью
- Возможность подключения в каскад при помощи каскадного устройства управления
- OPEN Therm коммуникация
- Функция Antilegionela - антибактериальная функция защиты от бактерий легионеллы в горячей воде
- Адаптирован к белорусским условиям: стабильная работа при напряжении электросети от 155 В до 250 В. При выходе за пределы данного диапазона, котел автоматически отключится. Включение произойдёт, при стабилизации напряжения в указанных границах.
- Дополнительная изоляция обеспечивает низкий уровень шума при эксплуатации газового котла
- Защита вторичного теплообменника от отложений специальной обработкой его внутренней поверхности
Чешский турбированный одноконтурный газовый котёл HELIOS 24 ST сконструирован согласно последних действующих норм ČSN EN a IEC. При разработке особое внимание было уделено безопасности эксплуатации котла, минимизации эксплуатационных расходов при сохранении высокой надёжности, а так же использованы современные технологии и европейские компоненты.
Купить настенный одноконтурный газовый котел MORA-TOP Helios 24 ST
Технические характеристики одноконтурного газового котла Гелиос 24 ST (турбированный)
| Максимальная мощность, кВт | 20,7 |
| Минимальная мощность, кВт | 10,5 |
| КПД, % | 93 |
| Расход топлива при ном.мощности, м3/час | 2,67 |
| Ном.входное избыточное давление газа, мбар | 20 |
| Диаметр форсунки горелки, мм | 1,15 |
| Мин. давление под горелкой, мбар | 2 |
| Макс. давление под горелкой, мбар | 12 |
| Расширительный бак, л | 8 |
| Диапазон температуры для радиаторной / системы подогрева полов, °С | 30 - 80 |
| Макс.температура продуктов сгорания, °С | 111 |
| СО2, % | 8,1 |
| Диаметр дымохода, мм | 100/60 |
| Общая потребляемая эл. мощность, Вт | 104 |
| Температура срабатывания аварийного°С термостата | 105 |
| Вес котла, кг | 28 |
| Высота х Ширина х Глубина, мм | 750 х 400 х 340 |
| Точность регулирования ОВ и ГВС, °С | ±1 |
| |
Блок управления является основной частью одноконтурного газового котла MORA-TOP и имеет следующие функции, определяющие его возможности:
- Защитная функция - обеспечивает защиту от повреждения здоровья и имущества.
- Пользовательская функция - для пользователя.
- Процессорная функция - для обеспечения надёжной работы котла.
После подключения котла блок управления начинает выполнять соответствующие процессорные и защитные функции: контроля внутренней системы, контроля элементов безопасности, регулировки отопительного процесса и процесса приготовления ГВС согласно заданным параметрам. Данная процедура периодически повторяется, реакция на изменения регулирования и безопасности эксплуатации происходит в течение нескольких миллисекунд.
Блок управления постоянно контролирует сигналы всех подключенных элементов:
- датчика давления ОВ
- датчика температуры ОВ
- датчика протока ГВС
- датчика температуры ГВС
- маностата
- аварийного термостата
- комнатного термостата
- термостата продуктов сгорания
- ионизационного электрода
- датчика наружной температуры
Измеренные величины и сигналы немедленно обрабатываются в блоке управления и, в зависимости от результатов, плавно увеличивается или уменьшается количество газа, подаваемого на горелку котла.
Блок управления регулирует работу: газового вентиля, трёхходового клапана, циркуляционного насоса, вентилятора продуктов сгорания, запального электрода (трансформатора), модулятора горелки.
Купить чешский одноконтурный турбированный газовый котел мощностью 24 кВт в Минске
Защитные функции газового котла Helios 24 ST
Одноконтурный газовый котел Helios 24 ST оснащён функциями, защищающими его от повреждений.
1) Защита при неисправности датчиков
Блок управления котла постоянно контролирует параметры и состояние присоединённых датчиков. При выходе за установленные параметры появится сигнал сбоя и котёл отключится. Если любой датчик зафиксирует величину, которая не соответствует его параметрам (например, в случае замыкания или разъединения датчика), произойдёт выключение котла. При этом состояние неисправности отобразится на дисплее соответствующим кодом.
2) Защита от перегрева
Электроника защищает котёл от перегрева на основании величин, измеренных датчиками температуры.
3)Защита при помощи датчика температуры отопительной воды
В случае, если температура отопительной воды превысит 95°C, включится циркуляционный насос, который продолжит работу до тех пор, пока температура не понизится до 80°C. При активации этой защиты будет перекрыт доступ газа к горелке котла.
4) Защита при помощи датчика температуры ГВС
В случае, если температура ГВС превысит 75°C, включится циркуляционный насос, который продолжит работу до тех пор, пока температура не понизится до 60°C. При активации этой защиты будет перекрыт доступ газа к горелке котла.
5) Защита отвода продуктов сгорания
Газовый котел Helios (Гелиос) 24 STс закрытой камерой сгорания, которая защищена от попадания продуктов сгорания в помещение обеспечивается маностатом воздуха. Маностат воздуха используется в газовых котлах с
закрытой камерой сгорания с принудительным отводом продуктов сгорания. В случае выключения вентилятора происходит отключение маностата воздуха. В случае, если блок управления даст команду на запуск вентилятора, то произойдет включение маностата воздуха.
6) Защита от замерзания и функция деблокирования
Защита от замерзания
- Данная функция защищает котёл от замерзания в нём воды, является активной в режиме STAND-BY (режим готовности).
- Как только температура ОВ опустится ниже +5°C, включится циркуляционный насос, который будет работать до тех пор, пока температура ОВ не достигнет +10°C.
- Если температура ОВ опустится ниже +5°C, произойдёт включение котла на минимальную мощность. Когда температура достигнет +8°C котёл отключится, функция добега насоса останется активной.
- Функция Antilegionela - при подключении бойлера ГВС с датчиком ГВС вода будет нагреваться в бойлере до 60 ° C 1 раз в течение 7 дней.
- При отключении котла от электрической сети или подвода газа, защита от замерзания не работает.
В случае использования бойлера косвенного нагрева защита от замерзания работает таким же способом.
Функция деблокирования
Данная функция не допускает заклинивания ротора насоса и трёхходового вентиля. Если насос или трёхходовой вентиль не запускались более 24 часов, блок управления их включит на несколько секунд и не допустит заклинивания.
- Если котёл отсоединён от электрической сети, функция деблокирования не работает.
- Блок управления выполняет 1 раз в 24 часа собственный сброс системы защиты от блокировки.
- В случае использования бойлера косвенного нагрева функция деблокирования работает таким же способом.
Купить чешский одноконтурный турбированный газовый котел у официального представителя завода MORA-TOP в Беларуси - ООО "Торговый дом АТМОС" в рассрочку на 8 месяцев с доставкой по Минску и Беларуси выгодно! Приглашаем в магазин электрических котлов в Минске улица Каменногорская, 47. Поможем рассчитать мощность одноконтурного газового котла для отопления дома или квартиры.
Наша компания оказывает следующие услуги:
- установка и монтаж экономного настенного газового котла отопления мощностью 24 кВт чешского производителя MORA-TOP;
- бесплатная доставка настенного газового котла отопления по Беларуси;
- предлагаем купить газовый котел для отопления частного дома, воспользовавшись нашей фирменной рассрочкой на 4 месяца 0%.
Обращаем внимание, что корректная и длительная работа газового котла зависит от правильности его установки и ввода в эксплуатацию. Поэтому очень важно обратиться в уполномоченный сервисный центр за квалифицированной помощью по данным вопросам. При несоблюдении требований по установке и техническому обслуживанию настенного одноконтурного турбированного газового котла MORA TOP Helios 24 ST гарантийные обязательства со стороны производителя в случае технической неисправности распространяться не будут.
Гарантия на турбированный одноконтурный газовый котел МОРА - ТОП Гелиос 24
ST: 2 +1 года!
Инструкция по монтажу и обслуживанию настенного одноконтурного котла MORA-TOP Helios 24 ST
Сертификат соответствия ТР ТС 016/2011
Сертификат соответствия ТР ТС 004/2011, ТР ТС 020/2011
производитель
MORA - TOP
Тип установки
навесные
Мощность
24 кВт
Топливо
Газ
Отапливаемая площадь
240 м²
Вид
Одноконтурный, Турбированный









