Проектирование систем отопления, водоснабжения, канализации
Профессиональное проектирование отопления с каждым годом становится достаточно востребованной услугой, т.к. отопление дома - сложнейшая инженерная система, взаимосвязанная с энергоэффективностью, комфортом, экономичностью, надежностью теплоснабжения. Комплексный подход к проектированию систем отопления частного дома, водоснабжения и канализации на стадии разработки строительного проекта, позволяет учесть все нюансы - от расчета теплопотерь и подбора необходимой мощности отопительного прибора до расстановки радиаторов, укладки теплого пола, разработки гидравлических схем и автономному управлению системой отопления.
Проектное решение для системы отопления: предварительная детальная техническая проработка оптимального инженерного решения.
Поставка и монтаж: комплексная поставка отопительного оборудования, шеф-монтаж, запуск «под ключ».
Сервис: качественное гарантийное, сервисное и пост-гарантийное обслуживание.
Заказывайте комплексное проектирование системы отопления, расчет тепловых потерь, подбор отопительного оборудования - твердотопливного, электрического или газового котла отопления, радиаторов, водонагревателя и бойлера, запорной арматуры и теплого пола. Проект системы отопления позволяет сократить расходы на этапе строительства дома и в последующем существенно экономить на эксплуатации и обслуживании отопления.
Заказать проект системы отопления частного дома можно по телефону +375 29 374 13 45
|
ЭТАПЫ ПРОЕКТИРОВАНИЯ ОТОПЛЕНИЯ:
1. Определение основного источника тепла. В условиях ежегодного изменения тарифов на газ, твердое топливо, электроэнергию, появлению нового высокотехнологичного оборудования сделать выбор достаточно сложно. Как правило, мы советуем рассматривать возможность использования нескольких отопительных приборов. Например, в качестве основного - твердотопливный котел, как альтернатива - газовый или электрический котел. Или наоборот. Рационально на стадии проектирования и строительства предусмотреть альтернативные источники тепла. Прагматизм поможет в будущем избежать ненужных моральных и материальных затрат.
2. Предоставление плана дома. Для подбора необходимой мощности отопительных приборов и основного источника тепла, требуется провести тепловые расчеты, учитывая площадь и объем дома, материал, конструкцию и коэффициент теплопроводности стен, кровли, фундамента, остекления.
|
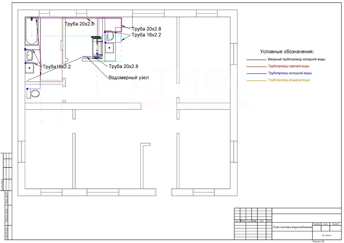
3. Проведение гидравлических расчетов отопления и водоснабжения. Необходимость гидравлических расчетов обусловлена правильным подбором отопительных приборов, позволяющих эффективно и комфортно обогреть каждое помещение, а также определить сопротивление отопительной системы и рассчитать диаметры трубопроводов и запорной арматуры, мощности насосных групп и радиаторов. Все необходимы расчеты производятся в соответствии с действующей нормативной базой.
![]() | ![]() | ![]() | ![]() |
![]() | ![]() | ![]() | |
4. Согласование предварительной спецификации. Уточнение предложенных материалов и оборудования. Для обсуждения сметы мы предлагаем встретиться с Заказчиком в офисе нашей компании, где представлены выставочные образцы отопительного оборудования. В случае принятия окончательного решения инженер выезжает на объект Заказчика, где происходит осмотр помещений, уточнение нюансов расстановки отопительных приборов и т.д. При необходимости материалы, оборудование, объем работ может быть скорректирован. В заключение мы предоставляем готовое проектное решение отопления с пояснительными записками, чертежами, описаниями и т.д. Предложенное отопительное оборудование можно купить самостоятельно или обратиться за комплексной поставкой и выполнением работ в нашу организацию.
|
5. Заключение договоров на поставку оборудования, проведение монтажных работ и технического обслуживания, выдача технической документации - паспортов, инструкций, гарантийных талонов, сертификатов.
6. Проведение монтажных работ. Монтажные работы систем отопления, водоснабжения, канализации, гидравлические испытания, пуско-наладочные работы производятся в согласованные с Заказчиком сроки. По окончанию работ Заказчику выдаются акты ввода в эксплуатацию оборудования, проводится подробный инструктаж по настройкам и управлению отопительной системы.
Выполняем расчёт системы отопления для индивидуального жилого дома.
В расчёт входит:
- расчет теплопотерь здания;
- подбор отопительного оборудования, котловой автоматики;
- расчет необходимого количества радиаторов отопления, теплых полов;
- составление спецификации по материалам;
- составление сметы по работам.
В результате вы получите технически правильное и экономически выгодное предложение по системе отопления частного дома.
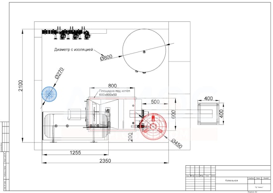
Каждый Заказчик на этапе проектирования отопления предпочитает сначала увидеть, как, например, будет смонтировано и расставлено оборудование в топочной и как его можно обслужить (необходимо помнить о том, что любой котел, насос, клапан или бойлер требует регламентированного технического обслуживания). Поэтому наша организация предлагает визуализацию расстановки отопительного оборудования в формате 3D, в котором наглядно представлена компановка топочной и системы отопления. Проект в трехмерном изображении помогает проконтролировать правильность выполнения монтажа каждого узла в системе отопления.
|
Профессиональный подход и многолетний опыт в области отопления обеспечивает грамотное выполнение комплекса проектных и монтажных работ. Сотрудничество с лучшими чешскими производителями, отсутствие посредников позволяет нам предложить продукцию на выгодных условиях и по лучшим ценам. Наличие полной базы необходимого оборудования - твердотопливные, газовые, электрические котлы, трубы, радиаторы, бойлеры, насосы, расширительные баки, запорная арматура, дымоходы и многое другое - дает нам возможность предложить широкий выбор интересующего вас товара.
Наши работы:
Техническое решение по внутренним инженерным системам.
Комплексный проект системы отопления способствует минимизации затрат на начальном этапе обустройства инженерных сетей и гарантирует экономичное обслуживание на протяжение многих лет эксплуатации того или иного оборудования. Многие владельцы частных домов на начальном этапе стройки заказывают проекты инженерных сетей и отопления, в которых учтены все нюансы - начиная от материала стен, кровли, фундамента, заканчивая автономным управлением отопительным котлом и системой отопления в целом.
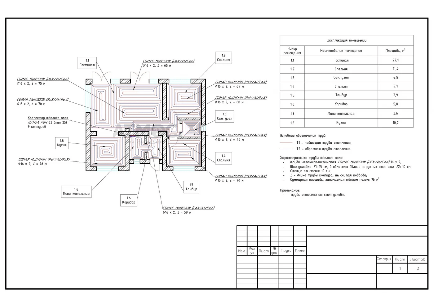
В данном проекте для частного дома в аг. Бобовичи выполнили следующие расчеты, учитывая пожелания заказчика по установке радиаторов и укладке теплого пола:
|
|
|
|
|
|

- составление спецификации материалов и оборудования.

Монтаж объекта по составленному проекту.
Проект отопления для загородного дома с электрическим котлом MORA-TOP.
В данном проекте для загородного дома выбран электрический котел MORA-TOP Komfort 24. Подогрев горячей воды осуществляется с помощью бойлера косвенного нагрева с двумя теплообменниками DRAZICE OKC 200 NTRR для последующего подключения солнечных коллекторов.
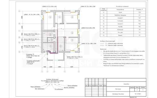
В системе отопления предусмотрено 3 отопительных контура: контур теплых полов, контур радиаторного отопления первого и второго этажа.
Для загрузки бойлера использован трехходовой кран (фугас). Распределение теплоносителя по системе отопления осуществляется при помощи гидравлического разделителя HANSA HW 3000. Далее тепловые потоки разделяются с помощью распределительного коллектора HANSA HKV 125 мм и групп быстрого монтажа (смесительная HANSA MK с энергосберегающим насосом GRUNDFOS и смесительным клапаном с сервоприводом - для коллектора системы подогрева теплого пола немецкой фирмы HANSA FBH 63 и две прямых HANSA UK с энергосберегающим насосом GRUNDFOS - для коллекторов системы радиаторного отопления первого и второго этажа HANSA FBH 53).
![]() | ![]() |
![]() | ![]() |
![]() | |
Проект отопления для частного дома с установкой газового котла.
Выполняем проект отопления для частного дома. Запроектирован газовый одноконтурный турбированный котел De Dietrich с горизонтальным коаксиальным дымоходом, бойлер косвенного нагрева объемом 160 литров чешского производителя DRAZICE OKC 160NTR/HV, расширительный бак для ГВС REFLEX DE 18 и расширительный бак для системы отопления REFLEX NG 18. В системе отопления предусмотрена установка стальных радиаторов и уклада теплых полов.

Проект отопления для частного дома с пиролизным котлом ATMOS.
В проектный отдел нашей компании поступил заказ на проект системы отопления частного дома площадью 150 м2 с 3D визуализации котельной. Основой вид топлива - дрова.
В данном проекте для частного дома выбран твердотопливный пиролизный котел ATMOS DC 22 S (Чехия), в качестве резервного источника отопления - чешский электрический котел MORA-TOP Komfort 24. Подогрев горячей воды осуществляется с помощью бойлера косвенного нагрева с двумя теплообменниками DRAZICE OKC 200 NTRR/BP (Чехия) для последующего подключения солнечных коллекторов. Для энергоэффективной работы пиролизного котла ATMOS предусмотрена чешская аккумулирующая емкость DRAZICE NAD v2 1000 с энергоэффективной изоляцией Neodul теплопроводностью 0,032 Вт·м-1·К-1.
В системе отопления предусмотрено 3 отопительных контура: контур теплых полов первого этажа, контур теплых полов второго этажа, контур загрузки бойлера.
Распределение теплоносителя по системе отопления осуществляется при помощи гидравлического коллектора HANSA (Германия) HKV 125 мм и групп быстрого монтажа (смесительная группа HANSA MK с энергосберегающим насосом GRUNDFOS и прямой группой HANSA UK с энергосберегающим насосом GRUNDFOS).

Монтажные работы данного проекта были произведены нашим партнером.
![]() | ![]() | ![]() | |
Проект котельной с электрическим котлом MORA-TOP.
Проектное решение для частного дома с электрическим котлом. В системе электроотопления предусмотрены теплые полы, для ГВС установлен бойлер косвенного нагрева DRAZICE. Чешский электрический котел MORA-TOP 9 кВт обеспечивает эффективный нагрев системы отопления и ГВС.
Выбирайте энергоэффективное оборудование!
Заказывайте проект системы отопления по номеру телефона +375 29 374 13 45 Viber.





































